Einfamilienhaus
Neubau
Hagenbrunn
Entwurf: 2021
Nutzfläche: 450 m2
Zeitgemässes Wohnen in Hanglage
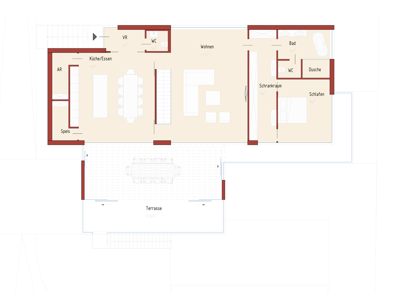
Das zweigeschossige Einfamilien- haus überzeugt durch seine klare, moderne Architektur, die sich harmonisch in die natürliche Topografie einfügt. Die geschickte Raumaufteilung nutzt die Hanglage, um Privatsphäre und grosszügige Wohnqualität zu verbinden.
Im Obergeschoss erstreckt sich ein offener Wohn und Küchenbereich, der durch grosszügige Verglas- ungen Licht und Landschaft ins Innere holt. Ein geräumiger Masterbedroom mit angeschlos- senem Bad komplettiert diese Ebene und schafft einen privaten Rückzugsort mit Ausblick.
Das untere Niveau beherbergt die weiteren Schlafräume, ein Büro sowie einen Fitnessbereich, allesamt geschützt in der Hanglage verankert. Die integrierte Garage fügt sich nahtlos ins Konzept ein und unterstreicht die funktionale Eleganz des Entwurfs.
Mit seiner reduzierten Formen- sprache und hochwertigen Mater- ialität setzt das Haus markante Akzente, ohne die natürliche Um- gebung zu dominieren.
⇇
⇠⇢