VHS Hofwiesengasse


    Umbau
    Wien
    entwurf: 2020
    Nutzfläche: 4500 m2


    Die sanierte Volkshochschule Hofwiesengasse präsentiert sich als zeitgemässes Bildungsgebäude, das durch klare Strukturen und optimale Raumnutzung überzeugt. Als neues architektonisches Highlight im Stadtbild verleiht sie dem Ort eine unverwechselbare Identität und trägt zur Aufwertung des gesamten Umfelds bei.

    Der Besucher wird durch einen elegant gestalteten Eingangsbe- reich empfangen: Ein geschwung- enes Vordach, eine erweiterte Bibliotheksachse und eine behin- dertengerechte Stiegenanlage schaffen eine einladende Atmos- phäre. Im südlichen Gebäudeteil fügt sich ein modernes Stiegenhaus harmonisch ein, das höchsten Brandschutzanforderungen ent- spricht und zugleich ästhetisch anspruchsvoll gestaltet ist.

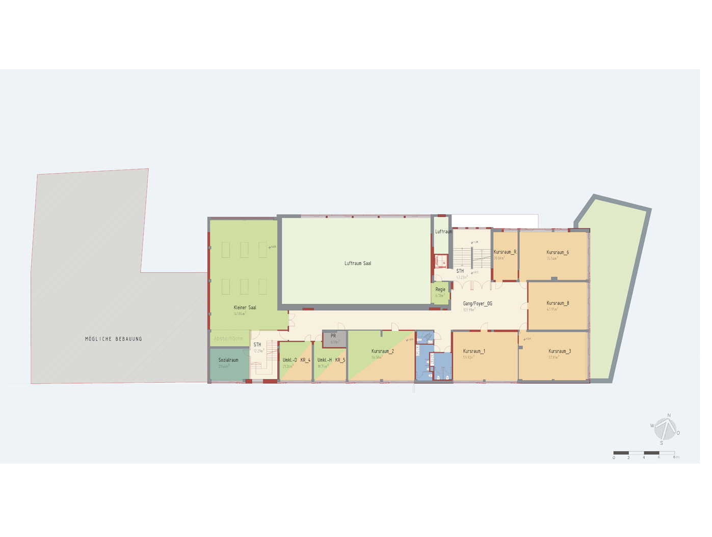
    Die Raumaufteilung überzeugt durch ihre Funktionalität: Das erste Obergeschoss beherbergt licht- durchflutete Kursräume, einen einladenden Sozialbereich und einen multifunktionalen Saal mit Umkleiden. Darüber gruppieren sich im zweiten Stockwerk weitere helle Unterrichtsräume und modern ausgestattete Verwaltungsbereiche um das zentrale Stiegenhaus. Grosszügige Verglasungen in den Verkehrsflächen ermöglichen einen harmonischen Lichtfluss zwischen Innen und Aussenbereichen.

    Horizontale Holz Alu Fensterbänder an Süd und Ostseite schaffen eine rhythmische Struktur, während schräge Verblechungen für spannende Tiefenwirkung sorgen. Die Farbgebung verbindet histor- isches Erbe mit zeitgemässer Architektur. Besonders markant ist der Kontrast zwischen dunklem Sockel und heller Fassade, ergänzt durch begrünte Rankelemente. Die Nordseite setzt mit farbigen Fensterbändern, einer grosszügigen Verglasung und lichtdurchfluteten Oberlichtern den Schlusspunkt dieses architektonisch anspruchs- vollen Ensembles, das Funktio- nalität mit ästhetischer Eleganz vereint.
  • ⇇