VHS Kürschnergasse


    Umbau
    Wien
    entwurf: 2020
    Nutzfläche: 3200 m2


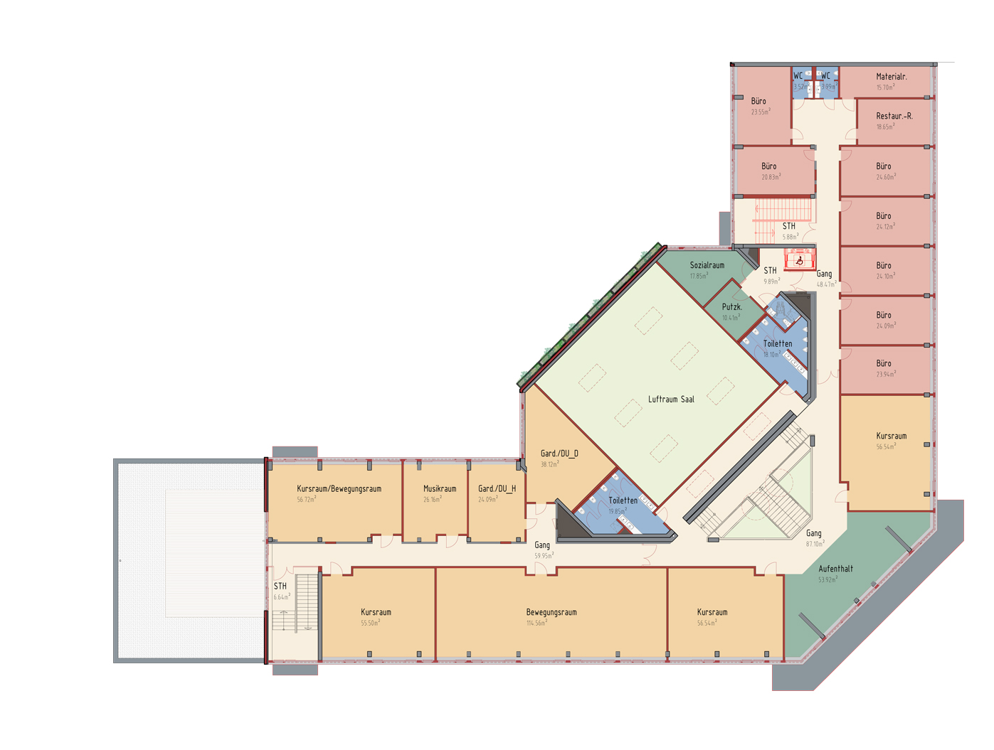
    Die Volkshochschule Kürschner- gasse wurde als zeitgemässes Gebäude mit klaren Strukturen konzipiert, das optimal genutzte Räume für moderne Anforderungen bietet. Die Sanierung verleiht dem Ort eine neue Identität und wertet das Umfeld auf.

    Der Haupteingang liegt am Schnittpunkt der Gebäudeschenkel, zurückgesetzt und mit einem markanten Vordach. Das Archiv der Volkshochschule befindet sich räumlich getrennt im Erdgeschoss, während die Magazine im Keller untergebracht sind, erschlossen durch einen neuen Treppenkern.

    Die weisse Fassade wird durch horizontale Fensterbänder und farbige Alupaneele an den Stützen gegliedert. öffenbare Holz-Alu-Fenster mit Nachtlüftung und schallgedämpften überströmöff- nungen ermöglichen Querlüftung. Die Fassaden- elemente variieren in Grün- und Blautönen pro Stock- werk. An der Südfassade des Veranstaltungs- raums wäre eine Rankbegrünung umsetzbar.

    Durchdachte Materialien und Lüft- ungskonzepte sorgen für Funk- tionalität, während die Gestal- tung dem Gebäude Charakter verleiht.
  • ⇇