BIAC Büroumbau


    Sanierung und Innenraumgestaltung
    Wien
    Planung: 2013
    Nutzfläche: 800 m2


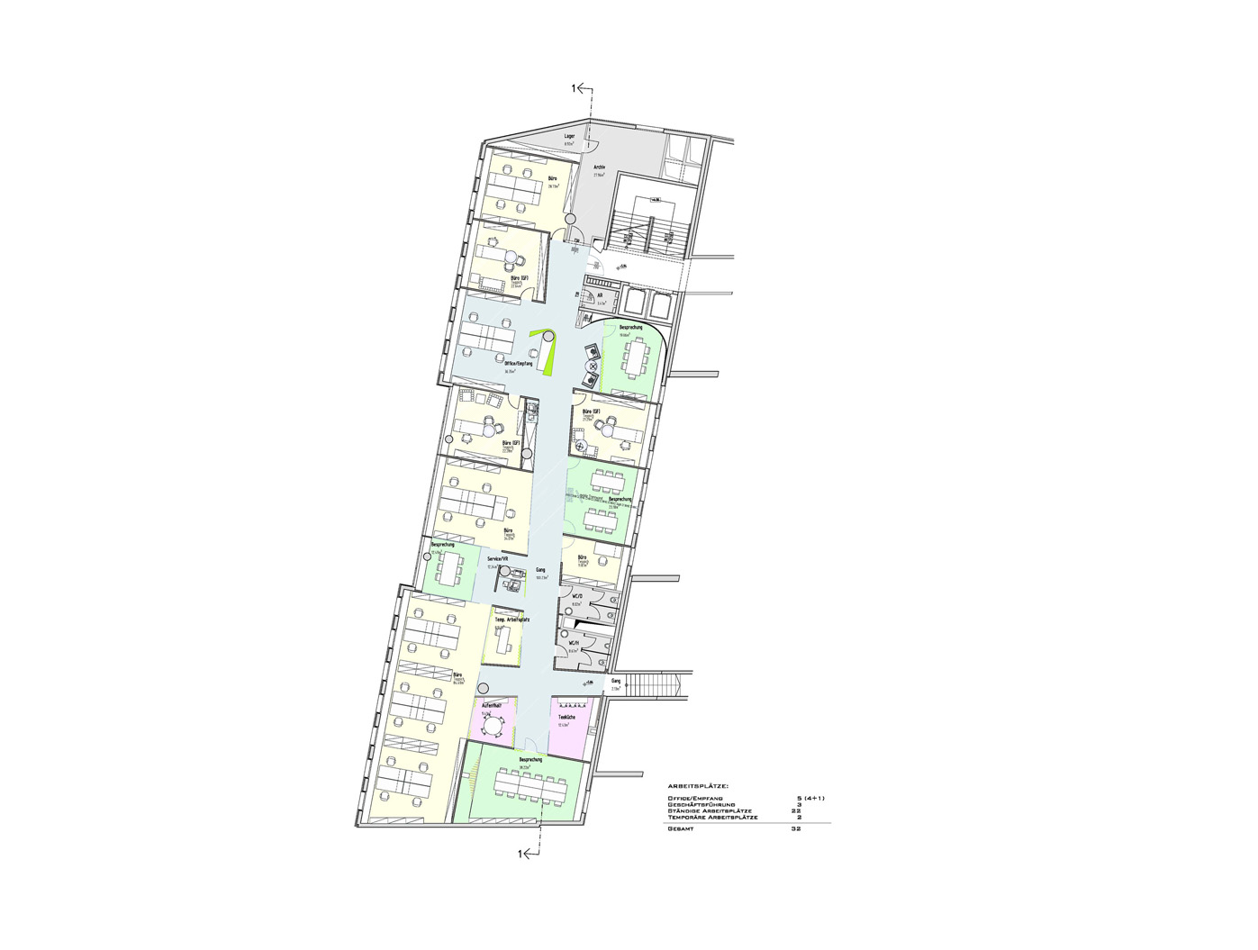
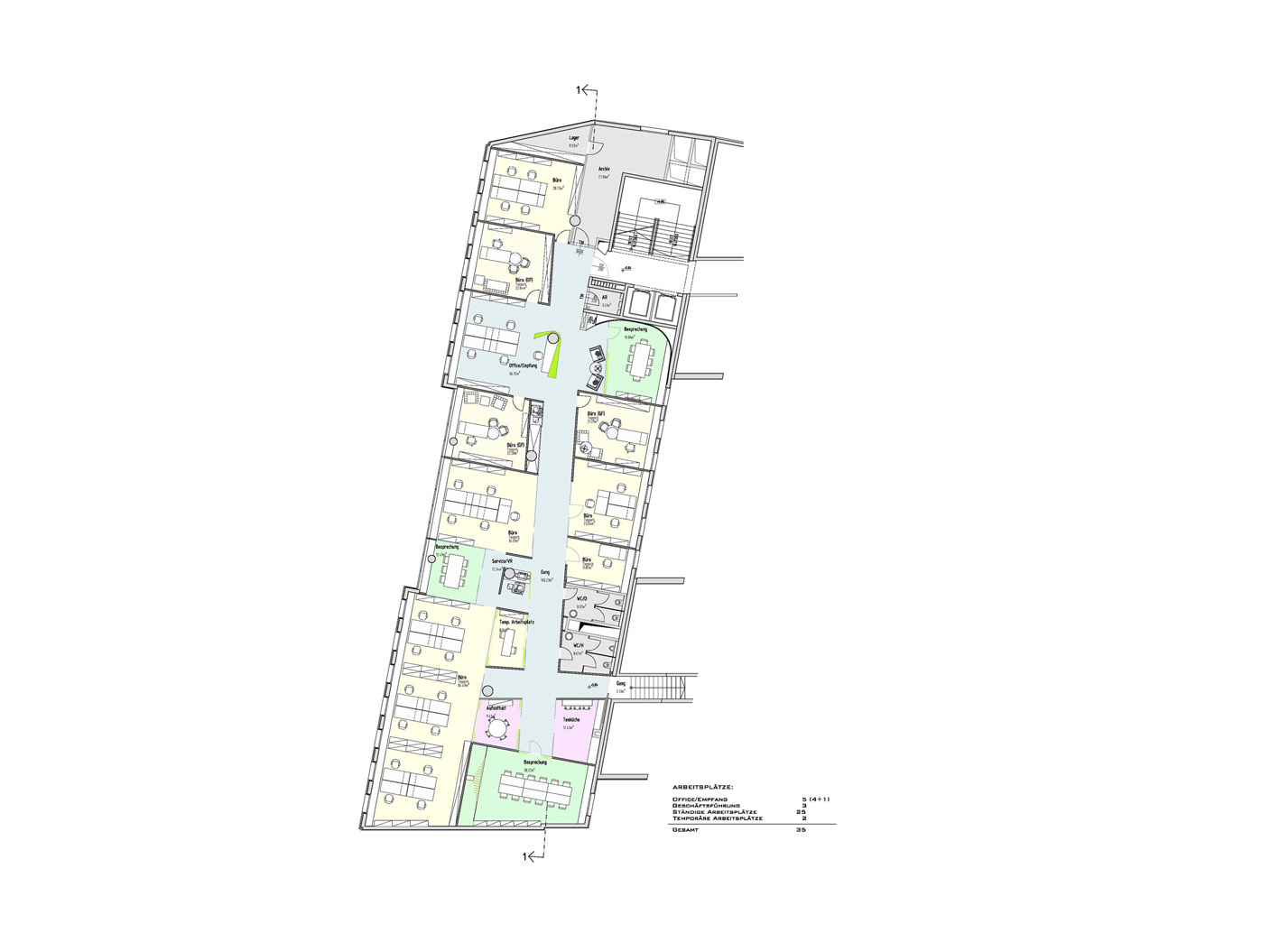
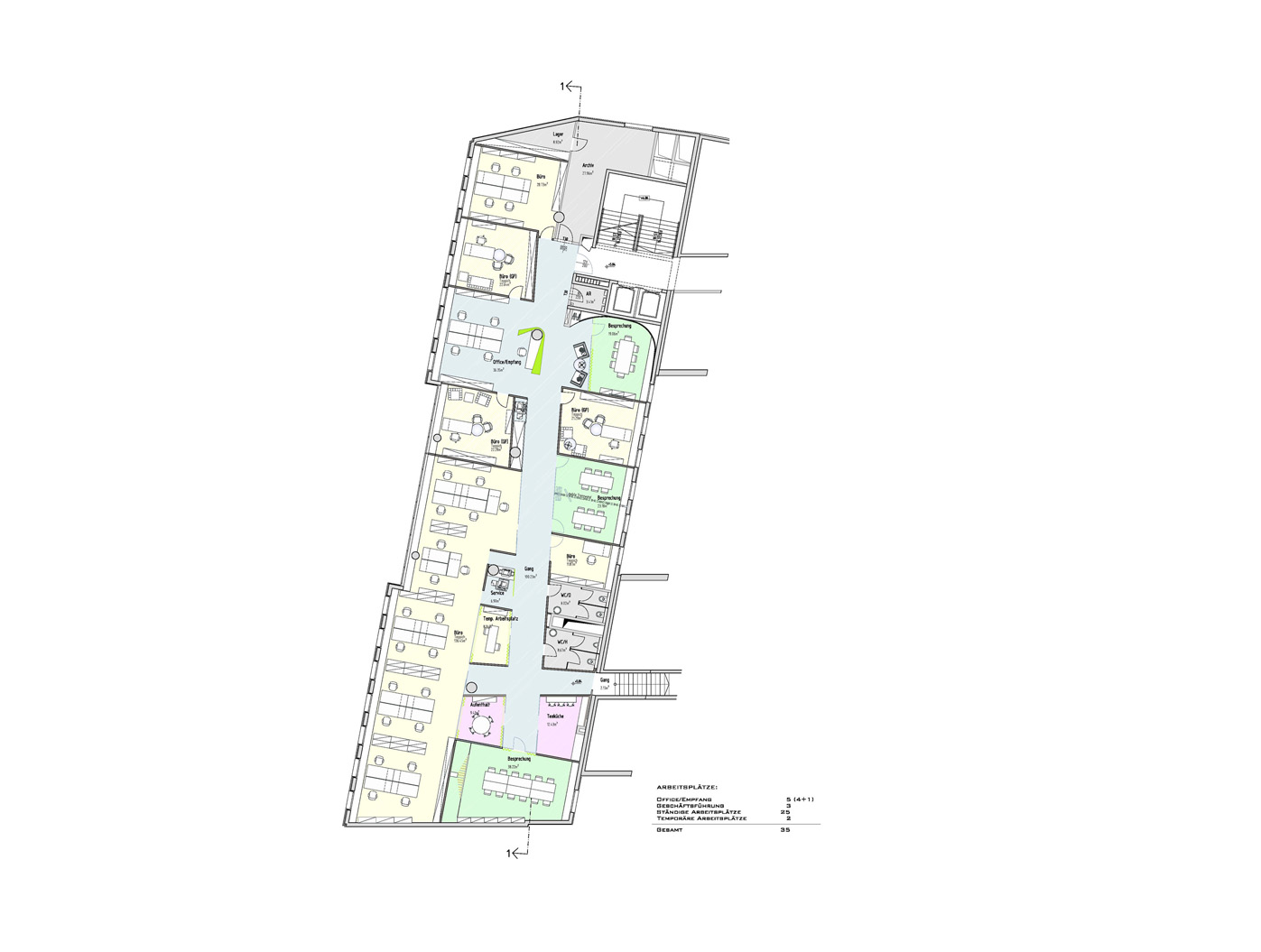
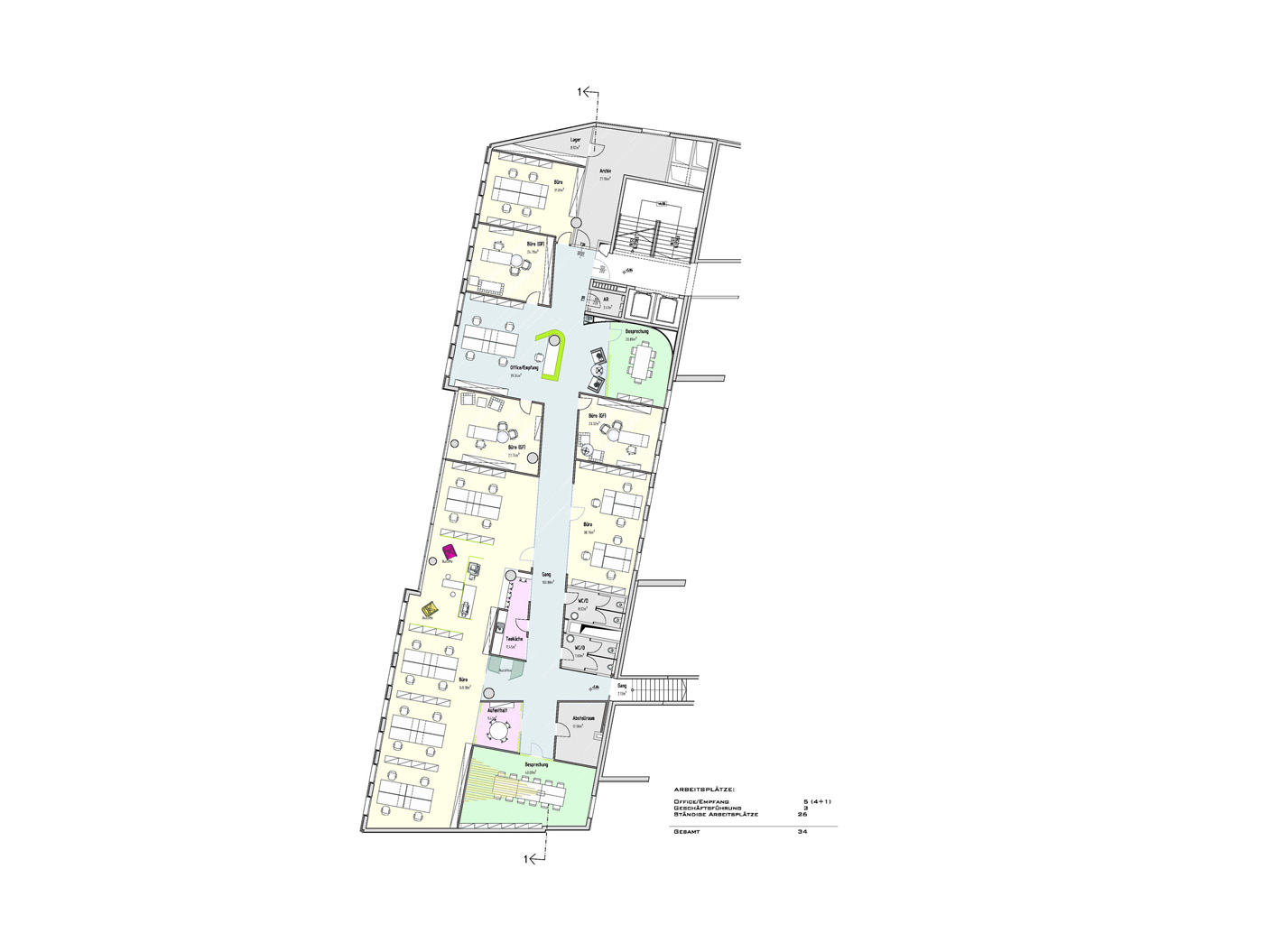
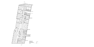
    Das Projekt in Wien umfasst die Sanierung und Innenraumgestaltung einer Bürofläche. Ziel war es, eine moderne Arbeitsumgebung für 30 Mitarbeiter innen sowie die Ge- schäftsführung zu schaffen.

    Der ursprünglich unattraktive Gang wurde verlegt, wodurch neue Raumzonen entstanden. Das archi- tektonische Konzept setzt auf Of- fenheit, Transparenz und Weitblick, Werte, die auch die Unternehmens- philosophie widerspiegeln. Die Ge- staltung fördert eine helle, ein- ladende Atmosphäre und schafft gleichzeitig funktionale Bereiche für konzentriertes Arbeiten und Zusammenkünfte.

    Der Entwurf zeigt eine klare, ästhetische Linienführung mit grosszügigen Glasflächen, die natürliches Licht einlassen und den Raum optisch erweitern. Die Ma- terialwahl kombiniert warme Holz- oberflächen mit industriell anmu- tenden Elementen, was eine zeit- gemässe und zugleich angenehme Arbeitsumgebung ergibt. Durch- dachte Details und eine offene Raumstruktur unterstreichen die Verbindung von Funktionalität und Design. Das Ergebnis ist ein harmonisches Arbeitsumfeld, das Dynamik und Professionalität ver- eint.
  • ⇇