Büroumbau


    Umbau und Innenraumgestaltung
    Wien
    Entwurf: 2010


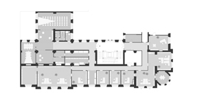
    Der Entwurf für das denkmalge- schützte Gebäude im Rathauskom- plex sah eine behutsame Trans- formation der historischen Sub- stanz in moderne Arbeitswelten vor. Für das Magistrat 34 waren neu gestaltete Büroräume geplant, die Funktionalität mit dem Charme des Altbaus verbinden sollten.

    Das Konzept beinhaltet zwei inno- vative Veranstaltungsräume, die durch eine mobile Trennwand flex- ibel nutzbar sind. Eine eigene Küchenzeile für Catering und prak- tische Abstellräume verkomplet- tieren die Multifunktionalität. Der Entwurf verdeutlicht den gedank- lichen Ansatz, bei dem zeitgemässe Elemente respektvoll in die denk- malgeschützte Struktur eingefügt werden sollten.
  • ⇇