Skywalk Spittelau


    Zweistufiger europaweiter
    Wettbewerb Gemeinsam mit
    dipl. ing. gernot schönauer

    Tragwerkspl.: Gmeiner & haferl

    3. Preis

    Wien
    Entwurf: 2004
    Fussgänger- und Radbrücke
    Spannweite: 250 m


    Der Skywalk als dynamische Verbin- dung in der urbanen Landschaft

    Inmitten einer von Verkehrsadern durchzogenen Landschaft entsteht der Skywalk als elegante Lösung für eine zunächst rein funktionale Aufgabe: das Verbinden von Orten. Die Architektur antwortet auf die Herausforderung des Ortes mit einer dynamischen Formensprache, die sich aus dem Dialog mit den bestehenden Bewegungslinien ent- wickelt. Mehr als nur eine über- querungshilfe wird der Skywalk zu einer Plattform, die den besonderen Reiz dieser urbanen Situation er- fahrbar macht, eine Inszenierung der scheinbaren Willkür des Raumes, die sich im Gestaltungsprozess zu einer eigenständigen ästhetik verdichtet.

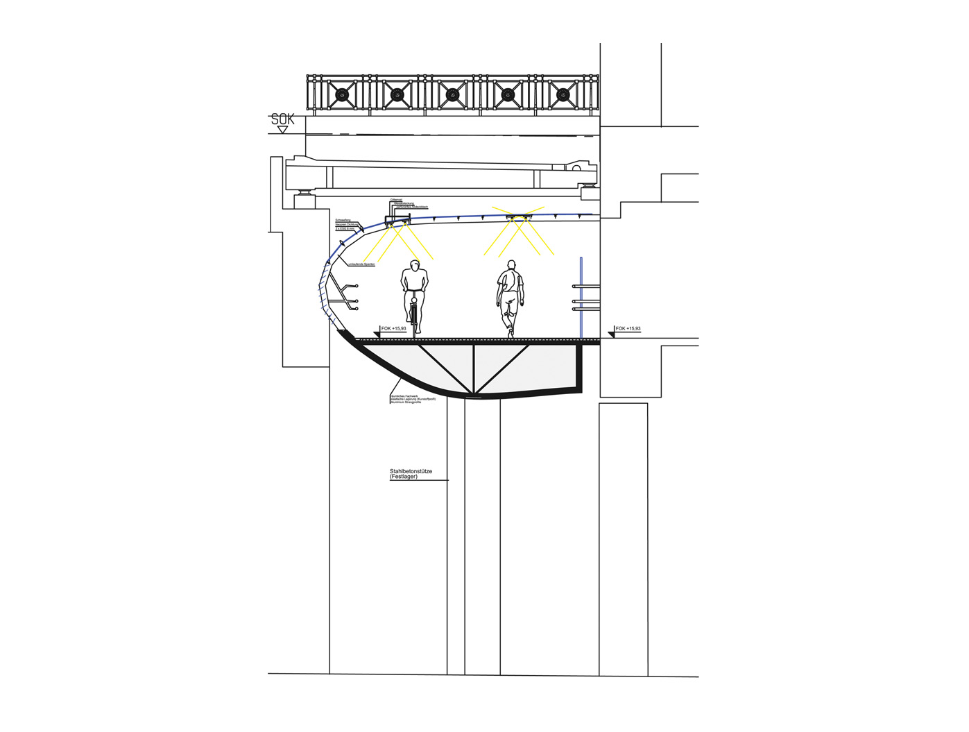
    Die Brückenkonstruktion vereint Transparenz und Geschlossenheit in einer ausgewogenen Materialkompo- sition. Durchsichtige Elemente aus Glas oder textilen Membranen wech- seln sich mit metallverkleideten Abschnitten ab, die durch ihre Oberflächenbehandlung eine eigene Präsenz entfalten. Der innere Geh- und Radweg aus Gussasphalt gewährleistet komfortable Nutzbar- keit, während durchgehende Licht- bänder in der oberen Hülle nicht nur für Orientierung sorgen, sondern auch nach aussen strahlen und so den Skywalk zu einem markanten nächtlichen Element der Stadtsilhouette machen.
  • ⇇