Zufahrtsgebäude


    Verfahren: Machbarkeitsstudie

    Zubau
    Wien
    Entwurf: 2008-2009
    Nutzfläche: 600 m2


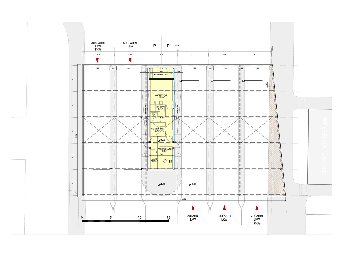
    Markteingang mit Tor-überdachung

    Die neue, markante überdachung am Eingang des Marktgeländes inszen- iert sich als eine grossformatige, leicht geneigte Tor-Situation. Mit einer freitragenden Spannweite von 33 Metern überspannt sie die Ein- und Ausfahrten sowie die Portier- loge und setzt einen klaren städte- baulichen Akzent. In der Nacht wird die Struktur durch gezielte Be- leuchtung als leuchtender Rahmen wahrnehmbar.

    Die Tragkonstruktion, wahlweise in Holz oder Stahl ausführbar, besteht aus sechs Trägern, die einerseits auf einer massiven Wand und ander- erseits auf einer filigranen Lamel- lentützenwand aufliegen. Diese auf- gelöste Stützenwand ermöglicht Durchblicke und verbindet das Tor mit dem umliegenden Areal. Die Aus- steifung übernimmt die Untersicht- verkleidung, die je nach Material- wahl in Holz oder Metall gestaltet wird.

    Das Portiergebäude fungiert als transparenter Kontrollpunkt: Seine Fassade kombiniert wärmegedämmte Betonfertigteile mit einer umlauf- enden, bedruckten Glasfassade. Die teils durchsichtige, teils mit Marktmotiven versehene Verglasung schafft ein lebendiges Spiel von Licht und Sichtbeziehungen. Zur Kühlung des Serverraums dient ein Lüftungsgerät auf dem Flugdach, während ein Konvektorgang die Anbindung an das Verwaltungs- gebäude sicherstellt.
  • ⇇