Krisenzentrum
Umbau
Innenraumgestaltung
Wien
Planung: 2009
Nutzfläche: 350 m2
Umbau zum
Kriseninterventionszentrum
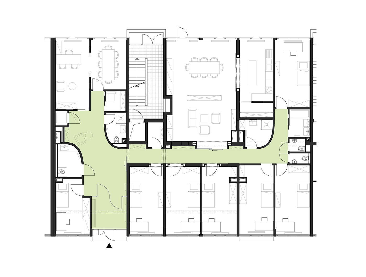
Das bestehende Mutter-Kind-Zentrum wird zu einem sensibel konzipierten Kriseninterventionszentrum umge- staltet. Die Architektur schafft dabei bewusst unterschiedliche Bereiche, die sowohl Funktionalität als auch Privatsphäre gewähr- leisten. Der vordere Gebäudeteil beherbergt die administrativen Funktionen mit Büro, Besprech- ungsraum und separatem Zimmer, ergänzt durch ein behinderten- gerechtes WC und eine Sanitärzelle für Betreuer. Diese Bereiche sind klar strukturiert und bieten eine professionelle Arbeitsumgebung.
Im rückwärtigen Teil entsteht ein geschützter Wohnbereich, der durch eine deutliche räumliche Trennung vom vorderen Bereich Privatsphäre schafft. Fünf gleichgrosse Jugend- zimmer, zwei Bäder und zwei WCs sowie ein eigenes Betreuer- zimmer bilden hier den Wohnbereich. Besonderes Augenmerk liegt auf dem zum Hof orientierten Wohn- und Küchenbereich, der als gemein- schaftlicher Treffpunkt gestaltet ist und durch seine Ausrichtung eine angenehme, geborgene Atmos- phäre erzeugt.
⇇
xxxxxx
Kriseninterventionszentrum
Wien
bauherr: MA 11 vertreten durch MA 19
Planung
Ausführung: 2009
Innenraumgestaltung
Nutzfläche: 350 m2
xxxxxx