Portierloge


    Umbau
    Innenraumgestaltung
    Wien
    Planung: 2009
    Nutzfläche: 300 m2


    Neugestaltung des Eingangsbereichs Rathausstrasse

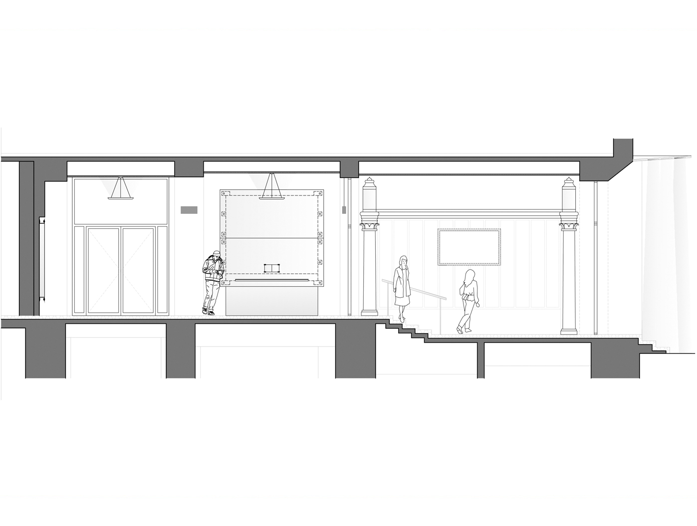
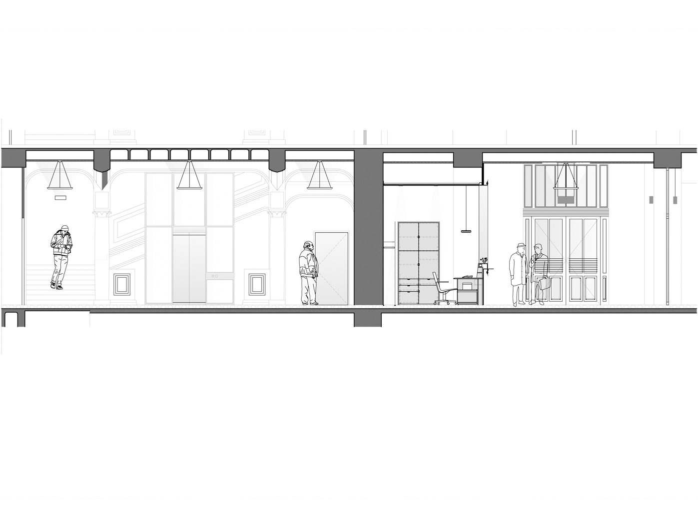
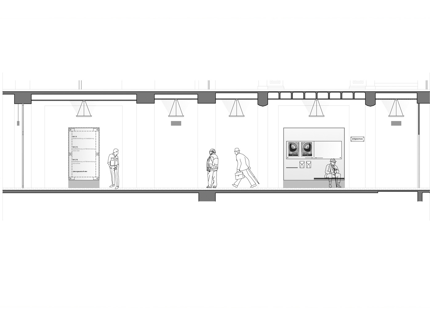
    Der Eingangsbereich erhält durch die behutsame Sanierung eine neue, zeitgemässe Identität, die histor- ische Elemente mit moderner Gestaltung verbindet. Das sanierte Vordach mit seinen satinierten Milchglasscheiben schafft eine subtile Filterung des Tageslichts, während die sorgfältig restaurierte Natursteinpflasterung mit ihren messinggerahmten Einlassungen dem Boden eine edle Textur verleiht.

    Die neue Portierloge bildet als transparenter Kubus das Herzstück der Gestaltung, ihre gläsernen Wände ermöglichen Blickbe- ziehungen und schaffen zugleich eine klare räumliche Struktur.Der kräftige rote Bodenbelag bildet einen lebendigen Auftakt und schafft eine warme, einladende Grundstimmung. Ihm gegenüber stehen die hellgrünen Möbel- elemente, die als moderne Akzente den Raum strukturieren und ihm zugleich eine frische, zeitgemässe Note verleihen.

    Die Materialität überzeugt durch ihre klare Sprache: Die satten Farbflächen harmonieren mit den natürlichen Holzoberflächen und den transparenten Glaswänden der Portierloge. Diese bewusste Reduk- tion auf wenige, aber prägnante Elemente schafft eine ruhige, aber dennoch ausdrucksstarke Atmos- phäre. Der Eingangsbereich wird so zu einer visuellen Visitenkarte des Hauses, die Tradition und Innovation in perfektem Einklang präsentiert.
  • ⇇

    Portierloge

    Wien
    bauherr: MA 34
    Planung
    Ausführung: 2009

    Innengestaltung
    Nutzfläche: 300 m2
  • 